Salto
architects
projects
news
about
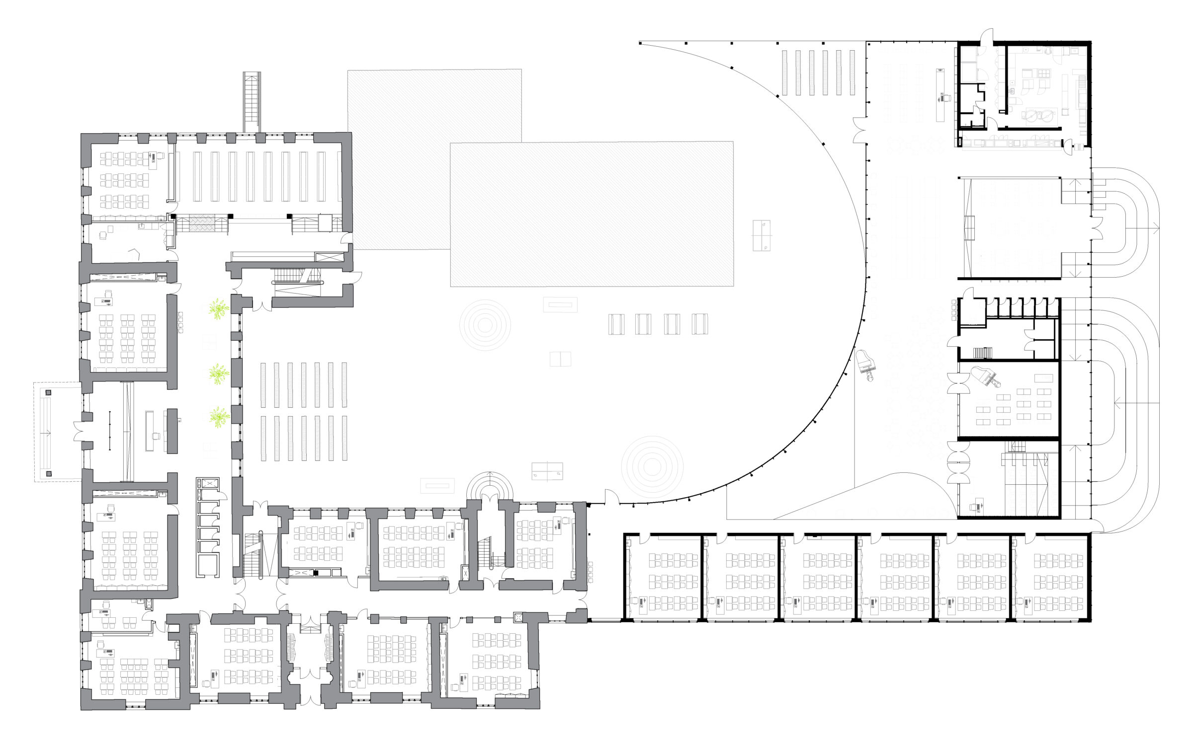
Narva Primary School
previous:
Narva State High School
next:
Emajõe Barge Society